Description de l'offre
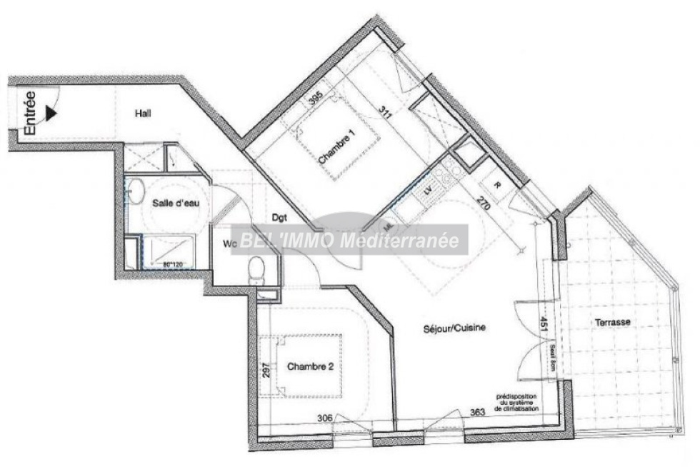
LOCATION A L'ANNEE. Résidence de 2018 située en Centre-Ville et avec ascenseur. Appartement de type 3 pièces d'environ 59,30 m² situé au 1er étage avec ascenseur comprenant : entrée avec rangement, séjour avec cuisine équipée, 2 chambres, salle d'eau, WC séparés. Terrasse de 10 m² exposée Sud. Aucun vis-à-vis. Garage double en sous-sol. Disponible le 01/04/2026.







